Moderne und neuwertige Büro- Praxisfläche in Top-Airportlage // Provisionsfrei für Mieter

Eckdaten

  • Art Praxisfläche
  • Lage Wilhelmstraße 5
    59439 Holzwickede
  • Miete zzgl. NK 1.750,00
  • Nebenkosten 400,00
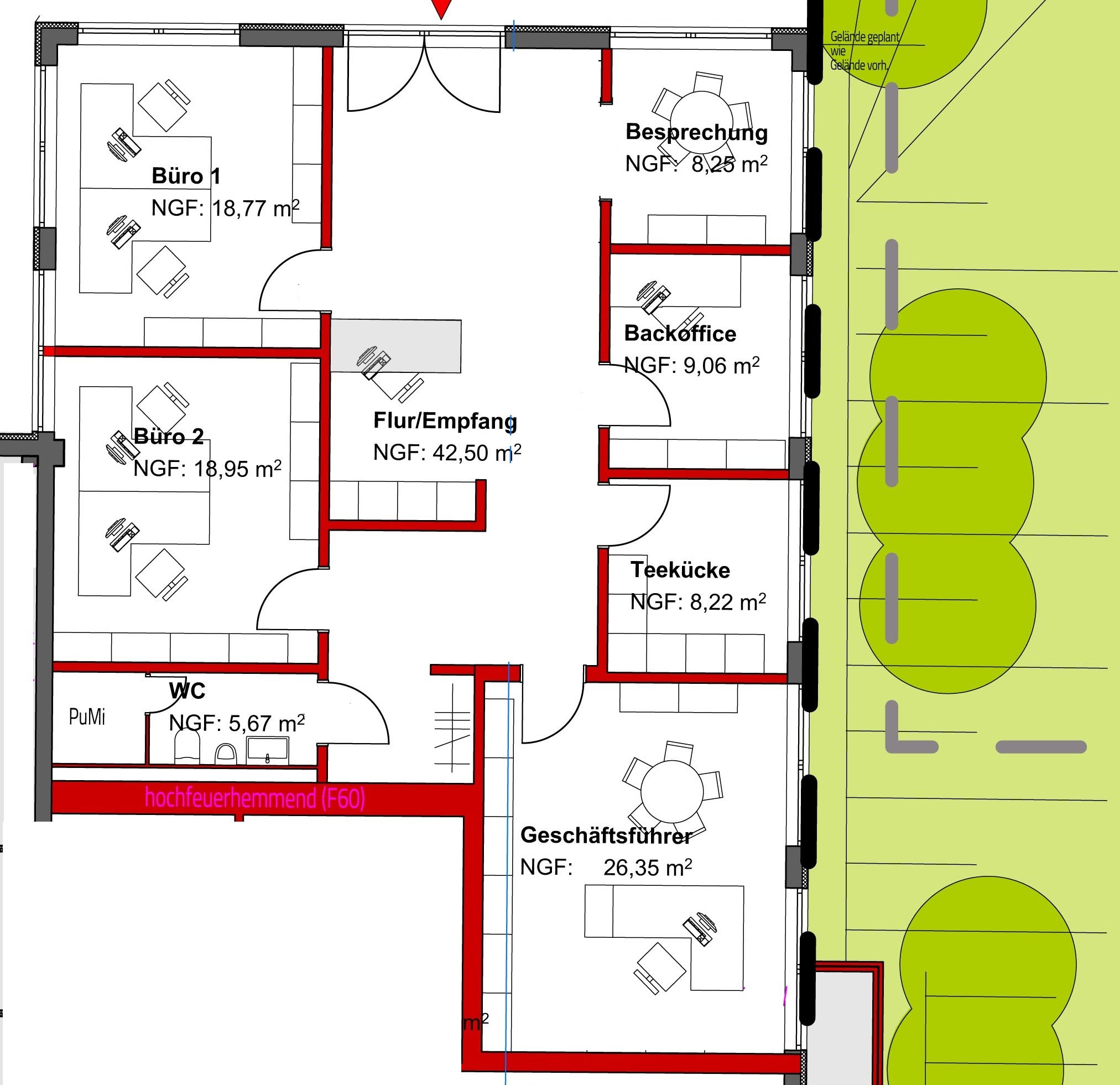
  • Gewerbefläche ca. 138
  • Bürofläche ca. 138
  • Zimmer 6
  • Baujahr 2023
  • Gesamtfläche ca. 138
  • Heizungsart Zentralheizung
  • Einbauküche ja
  • Stellplatztyp Aussenstellplatz
  • Kaution 5.000,00 €
  • Stellplatzmiete 70,00
  • Fahrzeit Hauptbahnhof 5 min
  • Fahrzeit nächste Autobahnauffahrt 2 min
  • Fahrzeit nächster Flughafen 1 min
  • Bodenbelag Vinyl
  • Zustand Modernisiert
  • Immobilien-ID 200710
Ulrich Böhler Immobilien
Wilhelmstr. 1, 59439 Holzwickede

Lage

Diese moderne und gut aufgeteilte Bürofläche wurde erst vor zwei Jahren hergerichtet und befindet sich in kurzer Entfernung zum Dortmunder Flughafen und in direkter Nachbarschaft zum Porschezentrum. Die Fläche ist von außen direkt ebenerdig zugänglich.
Die Anbindung ist absolut perfekt. Zur nahe gelegenen Autobahn mit Anbindung an das gesamte Ruhrgebiet sind es nur ca. eine Minute und zum Flughafen maximal zwei Minuten zu Fuß. Eine Bushaltestelle ist ebenfalls in direkter Nähe zu finden.
Die Infrastruktur im Haus und im direkten Umfeld ist sehr gut. Im selben Gebäudekomplex befindet sich auch eine große Bäckerei, so dass die Pausen in angenehmer Umgebung verbracht werden können.
Auf Wunsch können Sie auch eine größere Anzahl an Stellplätzen anmieten.

Ausstattung

- Oberböden in großformatiger Betonoptik (Vinylböden)
- Netzwerkverkabelung
- Bodentanks
- höhere Decken
- Einbauküche
- Rasterleuchten in LED Technik
- elektrische Beschattungsanlagen
- sämtliche Wände mit Malervlies weiß gestrichen
- gute Raumgrößen
- sehr gute Belichtung durch bodentiefe Fenster
- moderne WC-Anlage mit separatem Putzmittelraum
- PKW-Stellplätze direkt vor der Tür zur Anmietung vorhanden (auch eine größere Anzahl, wenn nötig)
- anbringung von Werbung problemlos möglich
- eigener Zugang ohne Treppenhaus
- das Gebäude wurde vor wenigen Monaten mit einer komplett neuen Heizung ausgestattet
- zusätzliche Abstellflächen im Keller möglich

Einbauküche DV Verkabelung Rollladen vorhanden

Sonstiges

Die angegebene Miete gilt zuzgl. 19 % Mehrwertsteuer.

Energieausweisangaben

  • Enerigeausweistyp Bedarfsausweis
  • Energieausweis erstellt am 05.05.2020
  • Energieausweis gültig bis 04.05.2030
  • Heizungsart Zentralheizung
  • Befeuerung / Energieträger Gas

Grundrisse

Wie können wir Ihnen behilflich sein?

Herzlichen Dank für Ihre Anfrage.

Wir werden diese so schnell wie möglich bearbeiten.

Wie können wir Ihnen behilflich sein?
* Pflichtfeld