-Provisionsfrei- Lichtdurchflutete Praxis- oder Bürofläche mit perfekter Anbindung und Stellplätzen

Eckdaten

  • Art Praxisfläche
  • Lage Wilhelmstraße 3
    59439 Holzwickede
  • Miete zzgl. NK 1.500,00
  • Nebenkosten 375,00
  • Gewerbefläche ca. 150
  • Bürofläche ca. 150
  • Zimmer 5
  • Baujahr 2000
  • Gesamtfläche ca. 150
  • Heizungsart Zentralheizung
  • Einbauküche ja
  • Stellplatztyp Aussenstellplatz
  • Kaution 4500 €
  • Stellplatzmiete 70,00
  • Aufzug ja
  • Fahrzeit Hauptbahnhof 5 min
  • Fahrzeit nächste Autobahnauffahrt 1 min
  • Fahrzeit nächster Flughafen 1 min
  • Bodenbelag Vinyl
  • Zustand Modernisiert
  • Immobilien-ID 200725
Ulrich Böhler Immobilien
Wilhelmstr. 1, 59439 Holzwickede

Lage

Die Bürofläche befindet sich in kurzer Entfernung zum Dortmunder Flughafen in unmittelbarer Nähe zum Porsche Autohaus.
Die Anbindung ist absolut perfekt. Zur nahe gelegenen Autobahn mit Anbindung an das gesamte Ruhrgebiet sind es nur ca. eine Minute und zum Flughafen maximal zwei Minuten zu Fuß. Eine Bushaltestelle ist ebenfalls direkt vor der Tür.
Die Infrastruktur im Haus und im direkten Umfeld ist sehr gut. Im Nebengebäude befindet sich eine große Bäckerei, so dass die Pausen auch in angenehmer Umgebung verbracht werden können. Im Gebäude befindet sich eine Diamorphinpraxis und ein Elektrounternehmen.

Sprechen Sie uns bei Fragen an! Gern unterstützen wir Sie bei Ihrer Planung.

Ausstattung

- Vinylböden in Parkettoptik
- Netzwerkverkabelung
- höhere Decken
- Rasterleuchten in LED Technik
- elektrische Aussenbeschattungsanlagen
- sämtliche Wände mit Malervlies weiß gestrichen
- gute Raumgrößen
- sehr gute Belichtung durch große Fenster
- zwei moderne WC-Anlage
- PKW-Stellplätze direkt vor der Tür zur Anmietung vorhanden (Anzahl nach Wunsch)
- Kellerräume können zusätzlich angemietet werden
- Einbauküche kann kostengünstig vom Vormieter übernommen werden.

(Falls Sie mehr Platz benötigen! Im Nebengebäude wird kurzfristig noch eine größere Fläche mit 285 m² im Erdgeschoss frei. In diesem Gebäude befindet sich dann der Bäcker sowie die Allianz und ein Softwareunternehmen.)

Einbauküche DV Verkabelung Rollladen vorhanden

Energieausweisangaben

  • Enerigeausweistyp Bedarfsausweis
  • Energieausweis erstellt am 05.05.2020
  • Energieausweis gültig bis 04.05.2030
  • Heizungsart Zentralheizung
  • Befeuerung / Energieträger Gas

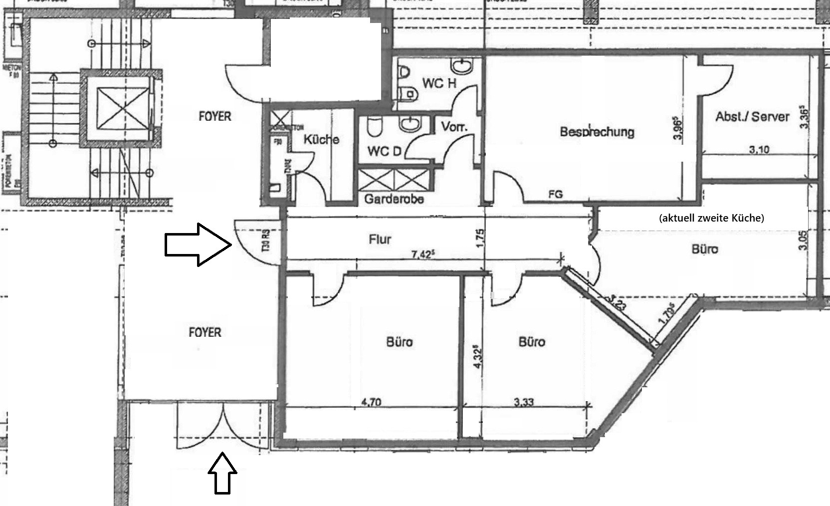
Grundrisse

Wie können wir Ihnen behilflich sein?

Herzlichen Dank für Ihre Anfrage.

Wir werden diese so schnell wie möglich bearbeiten.

Wie können wir Ihnen behilflich sein?
* Pflichtfeld