Luxus Büro- oder Praxisfläche in bester Lage am Phoenixsee

Eckdaten

  • Art Bürofläche
  • Lage Phoenixseestr.16
    44263 Dortmund
  • Mietpreis pro m² 17,50
  • Gewerbefläche ca. 350
  • Bürofläche ca. 350
  • Baujahr 2017
  • Gesamtfläche ca. 350
  • Etage 1
  • Heizungsart Zentralheizung
  • Stellplatztyp Tiefgarage
  • Stellplatzanzahl 4
  • Kaution 12000 €
  • Garagenmiete 120,00
  • Aufzug ja
  • Fahrzeit Hauptbahnhof 10 min
  • Fahrzeit nächste Autobahnauffahrt 5 min
  • Fahrzeit nächster Flughafen 20 min
  • Bodenbelag Fliesen Vinyl
  • Zustand Neuwertig
  • Immobilien-ID 200711
Ulrich Böhler Immobilien
Wilhelmstr. 1, 59439 Holzwickede

Immobilie

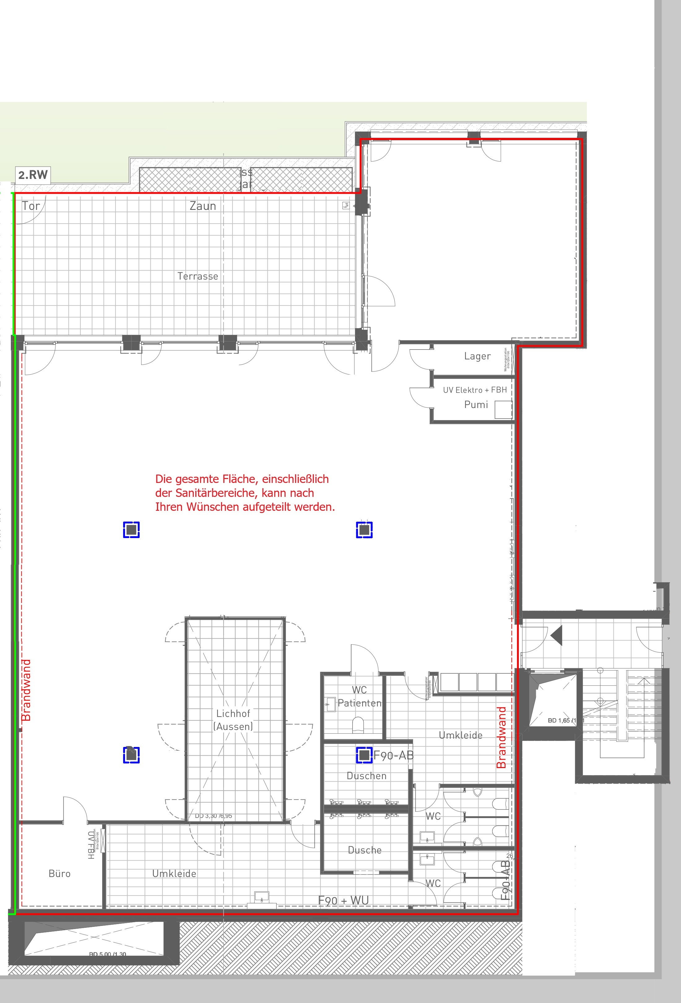
Wir bieten Ihnen hier eine moderne Fläche in herrlicher Seelage, die vom Eigentümer gern an Ihre Wünsche angepasst werden kann.

Ob andere Raumaufteilung, andere Böden oder abgehangene Decken. Hier kann Ihre Traumfläche in bester Seelage nach Ihren Vorstellungen entstehen.

Aktuelle gibt es noch einen hellen Lichthof, der mit einer großen Lichtkuppel für zusätzliche Fläche nutzbar gemacht wird.

Im Haus befinden sich zur Zeit zwei exklusive Arztpraxen sowie ein IT-Unternehmen.

Die Fläche ist für folgende Vorhaben besonders geeignet:

- Praxis
- Labor
- IT-Unternehmen
- Media- oder Werbeagentur
- Fitness / Wellness
- Rechtsanwalt / Notar
- Bürofläche für jegliche Art uvm.

Sie haben einen anderen Plan. Melden Sie sich gern bei uns und wir schauen uns die Fläche kurzfristig gemeinsam an.

Lage

Diese moderne Fläche befindet sich in perfekter, leicht erhöhter Lage mit direktem Seeblick und toller Terrasse.
In wenigen Schritten gelangen Sie zu allen gastronomischen Betrieben am See.

Ausstattung

- Aufzug direkt bis vor Ihre Büro /Praxistür
- direkter Seeblick
- Lüftungsanlage (Zu- und Abluft)
- barrierefrei
- DV- Verkabelung
- Fußbodenheizung
- höhere Decken
- große bodentiefe Fensterelemente
- elektrische Außenjalousetten
- separate WC- Anlagen inkl. barrierefreiem WC
- Duschen (können auch rückgebaut werden)
- großer Terrassenbereich mit direktem Seeblick und Zugang zum See
- Tiefgarage mit bis zu vier Stellplätzen

DV Verkabelung Rollladen vorhanden

Sonstiges

Sämtliche Daten wurden uns vom Eigentümer zur Verfügung gestellt.
Alle Preise verstehen sich zusätzlich 19 % Umsatzsteuer.

Energieausweisangaben

A+
A
B
C
D
E
F
G
H
  • Enerigeausweistyp Bedarfsausweis
  • Energiekennwert 49 KWh(m²*a)
  • Energieeffizienzklasse A
  • Energieausweis erstellt am 30.08.2019
  • Energieausweis gültig bis 29.08.2029
  • Heizungsart Zentralheizung
  • Befeuerung / Energieträger Fernwärme

Grundrisse

Wie können wir Ihnen behilflich sein?

Herzlichen Dank für Ihre Anfrage.

Wir werden diese so schnell wie möglich bearbeiten.

Wie können wir Ihnen behilflich sein?
* Pflichtfeld