Frisch renovierte Büro- / Praxisfläche mit Aufzug, Klimaanlage und vielen PKW-Stellplätzen

Eckdaten

  • Art Bürofläche
  • Lage Ostring 9-11
    59423 Unna
  • Miete zzgl. NK 1.200,00
  • Nebenkosten 240,00
  • Gewerbefläche ca. 120
  • Bürofläche ca. 120
  • Zimmer 4.5
  • Baujahr 1993
  • Gesamtfläche ca. 120
  • Etagenzahl 3
  • Etage 3
  • Heizungsart Etagenheizung
  • Stellplatztyp Aussenstellplatz
  • Kaution 3600 €
  • Stellplatzmiete 80,00
  • Aufzug ja
  • Fahrzeit Hauptbahnhof 2 min
  • Fahrzeit nächste Autobahnauffahrt 5 min
  • Fahrzeit nächster Flughafen 15 min
  • Bodenbelag Vinyl Fliesen
  • Zustand Erstbezug nach Sanierung
  • Immobilien-ID 200673
Ulrich Böhler Immobilien
Wilhelmstr. 1, 59439 Holzwickede

Immobilie

Diese gerade von Grund auf sanierte Büro-Praxisfläche befindet sich in unmittelbarer Nachbarschaft zum City Center am Ostring in Unna. REWE, DM, und Takko befinden sich in unmittelbarer Nähe.
Zur neu verlegten Fußbodenheizung mit Einzelraumregelung gibt es noch, für die heißen Sommertage, eine Klimaanlage, welche optisch gelungen in der Decke verbaut ist. Der Aufzug bringt Sie bequem vom Eingang bis direkt vor Ihre Bürofläche. Die Anbindung an den ÖPNV für Sie oder Ihre Mitarbeiter ist perfekt. Die Bushaltestelle befindet sich fast direkt vor der Tür und zum Bahnhof sind es zu Fuß nur fünf Minuten. Zur Fußgängerzone müssen Sie nur einmal die Straße überqueren und schon befinden Sie sich im Innenstadtbereich mit sämtlichen Geschäften und Restaurants. Stellplätze können in ausreichender Menge auf dem zugehörigen Parkdeck angemietet werden.

Lage

Ausstattung

- Fußbodenheizung mit Einzelraumregelung
- hochwertige Vinylböden in Parkettoptik
- große, moderne Dusche mit Echtglasabtrennung
- großes Fenster im Bad
- Gäste WC
- offener Küchenbereich
- Klimaanlage für die heißen Sommertage
- eigene Gas-Etagenheizung
- komplett neue Elektrik
- bodentiefe Fenster für helle Räume
- Aufzug bis direkt vor die Tür
- mehrere PKW-Stellplätze zu jeweils 80,00 € mtl. anmietbar
- Einkaufsmöglichkeiten direkt um die Ecke (alles zu Fuß zu erledigen)
- Bushaltestelle in direkter Nähe
- Bahnhof lediglich fünf Minuten zu Fuß entfernt
- Treppenhausreinigung und Winterdienst werden durch eine Fachfirma ausgeführt

Diese Bürofläche kann auch als Wohnung genutzt werden.

Energieausweisangaben

  • Enerigeausweistyp Bedarfsausweis
  • Energieausweis erstellt am 28.09.2024
  • Energieausweis gültig bis 30.09.2034
  • Heizungsart Etagenheizung
  • Befeuerung / Energieträger Gas

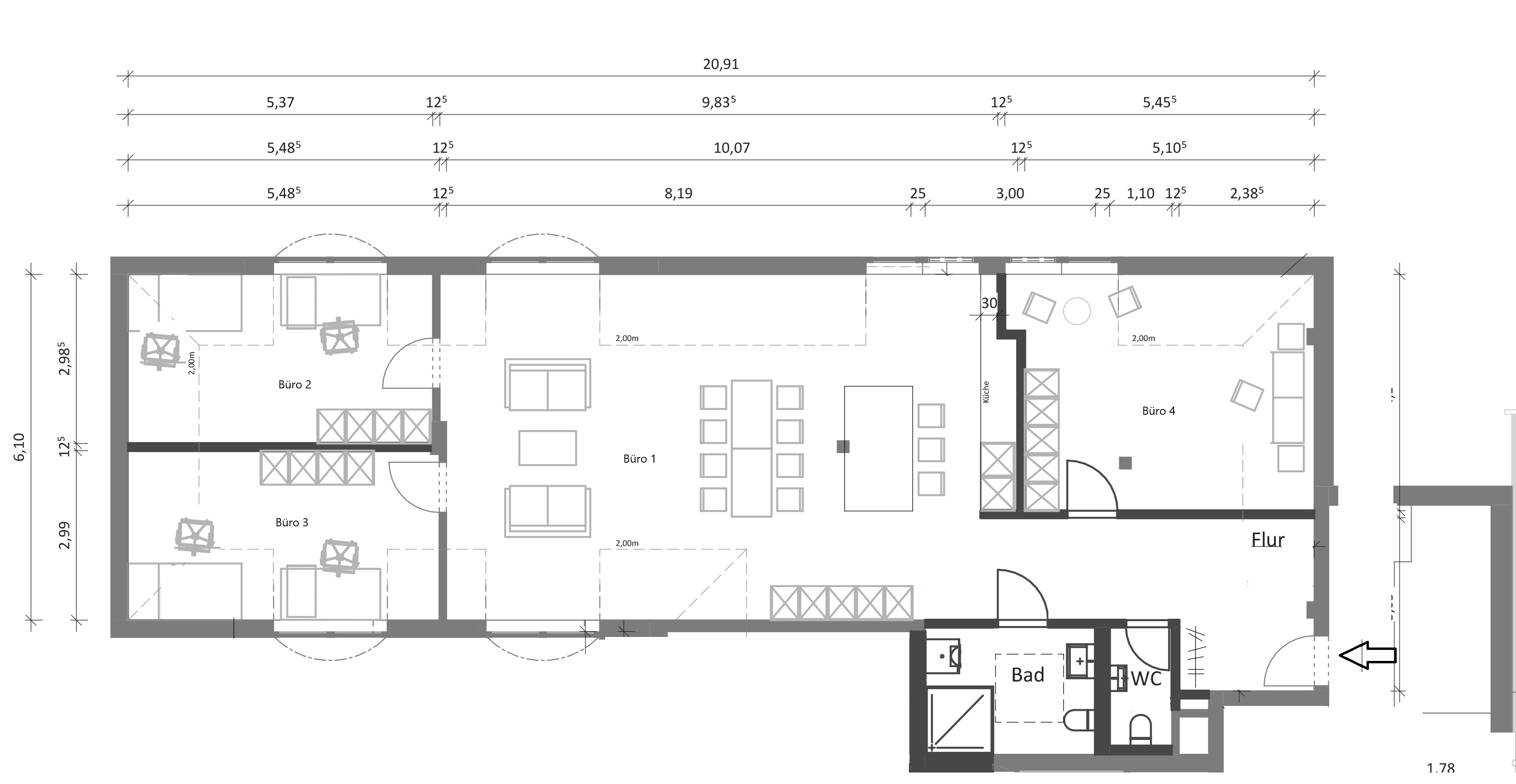
Grundrisse

Wie können wir Ihnen behilflich sein?

Herzlichen Dank für Ihre Anfrage.

Wir werden diese so schnell wie möglich bearbeiten.

Wie können wir Ihnen behilflich sein?
* Pflichtfeld